PROPERTY INFORMATION房源信息
■ 新建投资自住公寓 中野区中央
- 公寓名称
- THE ROOM’S中野中央
- 地址
- 中野区中央二丁目
- 路线
- 东京丸之内线 「中野坂上」駅 徒歩6分
- 价格
- 已售
■ 备注
■ 詳細情報
- 土地面积
- 85.57m2
- 接道方向
- 南侧
- 土地类别
- 宅地
- 区域用途
- 第一种中高层
- 建蔽率
- 60
- 容积率
- 200
- 建筑面积
- 127.93m2
- 建筑许可号
- 建筑许可取得日期
- 构造
- 木造3层
- 建造年代(预计竣工时期)
- H30年月
- 入住时期
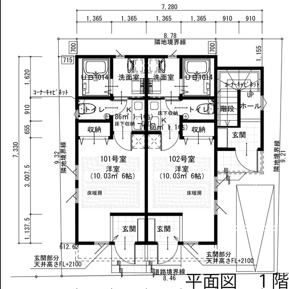
- 户型
- 1K「2户」2LDK+S「1户」
- 套内面积
- 20.01㎡~87.91
- 总户数
- 交易方式





















