PROPERTY INFORMATION房源信息
■ 整栋新建公寓 文京区千驮木
- 公寓名称
- 整栋新建公寓计划 文京区千驮木
- 地址
- 文京区千驮木2丁目
- 路线
- 千代田线 「千驮木」駅 徒歩3分
- 价格
- 已售
■ 备注
千代田线『千驮木』站徒步3分
南北线『本驹入』站徒步11分
JR山手线『日暮里』站徒歩14分
.......................................................................................................................................
・東京千代田线「千驮木」站出发 乘车时间
「大手町」 站 8分 「北千住」 站 7分
「霞之关」 站 13分
「赤坂」 站 18分
「表参道」 站 22分
・东京南北线「本驹入」站出发 乘车时间
「永田町」 站 12分
「麻布十番」站 18分
・JR山手线「日暮里」站より
「上野」 站 4分
「东京」 站 12分
「浅草」 站 17分
「新宿」 站 22分
根据不动产取得税的减轻制度,土地的取得税全额减免。
■ 詳細情報
- 土地面积
- 123.22m2
- 接道方向
- 西北侧公道宽约3.5m
- 土地类别
- 住宅用地
- 区域用途
- 近邻商业地域 第一种中高层住居专用地域
- 建蔽率
- 80・60
- 容积率
- 300・200
- 建筑面积
- 314.7m2
- 建筑许可号
- 第JTC19Y-AZ0959-00号
- 建筑许可取得日期
- 2020年3月11日
- 构造
- 钢筋混凝土4层
- 建造年代(预计竣工时期)
- 2020年10月末
- 入住时期
- 2020年11月
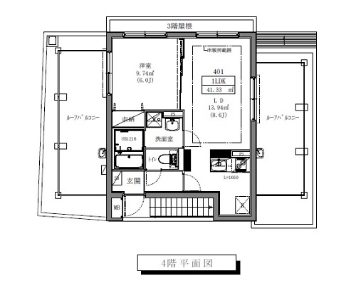
- 户型
- 1LDK・1K
- 套内面积
- 18.15~41.20
- 总户数
- 11户(1LDK×2户+1K×9户)
- 交易方式
- 卖方









