PROPERTY INFORMATION房源信息
■ 整栋新建公寓 大田区山王
- 公寓名称
- 地址
- 大田区山王一丁目
- 路线
- JR京滨东北线 「大森」駅 徒歩10分
- 价格
- 已售
■ 备注
JR京滨东北线『大森』站徒步10分
都营浅草线『马入』徒步13分
.......................................................................................................................................
・JR京滨东北线「大森」站より
「品川」 站 6分
「东京」 站 17分
■ 詳細情報
- 土地面积
- 139.92m2
- 接道方向
- 东南侧 公道及东北侧公道
- 土地类别
- 住宅用地
- 区域用途
- 近邻商业地域
- 建蔽率
- 80
- 容积率
- 300
- 建筑面积
- 402m2
- 建筑许可号
- 第JTC19Y-AZ0967-00号
- 建筑许可取得日期
- 2020年3月19日
- 构造
- 钢筋混凝土
- 建造年代(预计竣工时期)
- 2020年11月
- 入住时期
- 2020年12月
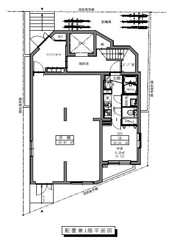
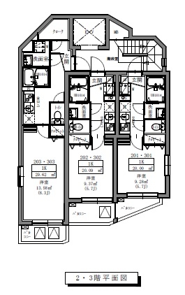
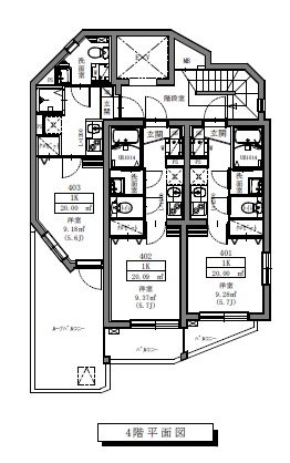
- 户型
- 店铺・1K
- 套内面积
- 店铺:45.40㎡ 1K:20.00~29.62
- 总户数
- 店铺1・1K×13户
- 交易方式










