PROPERTY INFORMATION房源信息
■ 整栋新建公寓 大田区羽田
- 公寓名称
- THE ROOM’S 羽田
- 地址
- 大田区羽田五丁目
- 路线
- 京滨急行空港线 「穴守稻荷」駅 徒歩4分
- 价格
- 已售
■ 备注
京滨急行空港线「穴守稻荷」站徒步4分
从京滨急行空港线「穴守稻荷」站乘车时间
「羽田空港国际线航空楼」站3分
「羽田空港国内线航空楼」站6分
「品川」站16分
・
■ 詳細情報
- 土地面积
- 106.19m2
- 接道方向
- 东侧
- 土地类别
- 住宅用地
- 区域用途
- 准工业用地
- 建蔽率
- 60
- 容积率
- 200
- 建筑面积
- 168.5m2
- 建筑许可号
- JTC20Y-AZ0060-00
- 建筑许可取得日期
- 2020年(令和2年)4月30日
- 构造
- 耐火木造 3层
- 建造年代(预计竣工时期)
- 2020年9月末
- 入住时期
- 2020年10月
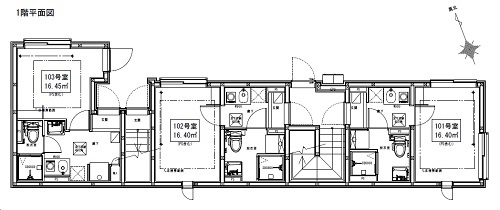
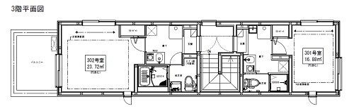
- 户型
- 1K
- 套内面积
- 16.10~23.40
- 总户数
- 1k×8户
- 交易方式
- 卖方








