PROPERTY INFORMATION房源信息
■ 整栋新建公寓 新宿区户山
- 公寓名称
- THE ROOM’S 新宿户山
- 地址
- 新宿区户山一丁目
- 路线
- 东西线 「早稻田」駅 徒歩6分
- 价格
- 已售
■ 备注
东西线「早稻田」站 徒歩6分
都营大江户线「若松河田」站 徒歩6分
........................................................................................................................................
・东西线「早稻田」站出发
「高田马场」 站 2分
「大手町」 站 10分
・大江戸线「若松河田」站出发
「东新宿」 站 2分
「新宿西口」站 4分
「六本木」 站 22分
建筑公司:株式会社ビラハウジング
■ 詳細情報
- 土地面积
- 99.73m2
- 接道方向
- 东南侧・东北侧
- 土地类别
- 住宅用地
- 区域用途
- 第一种中高层住居专用地区
- 建蔽率
- 60
- 容积率
- 300
- 建筑面积
- 298.06m2
- 建筑许可号
- 第JE21BAI-13-0053号
- 建筑许可取得日期
- 2021年2月9日
- 构造
- 钢筋混凝土造 4层
- 建造年代(预计竣工时期)
- 2021年9月末
- 入住时期
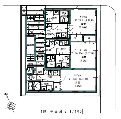
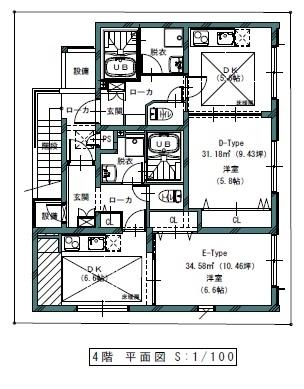
- 户型
- 1K・1DK
- 套内面积
- 总户数
- 1K×9户 1DK×2户
- 交易方式
- 卖方









