PROPERTY INFORMATION房源信息
■ 整栋新建公寓 丰岛区池袋本町
- 公寓名称
- THE PRECIOUS 池袋本町
- 地址
- 丰岛区池袋本町四丁目
- 路线
- 东武东上线 「下板桥」駅 徒歩2分
- 价格
- 已售
■ 备注
JR埼京线「板桥」徒歩7分
东武东上线「下板桥」徒歩2分
JR山手线「池袋」徒歩21分 约1600m
...................................................
・东武东上线「下板桥」站出发 乘车时间
「池袋」 站 3分
・JR埼京线「板桥」站出发 乘车时间
「新宿」 站 11分
「涩谷」 站 16分
建筑公司:株式会社ビラハウジング
■ 詳細情報
- 土地面积
- 159.45m2
- 接道方向
- 北西侧
- 土地类别
- 住宅用地
- 区域用途
- 近邻商业地区
- 建蔽率
- 80
- 容积率
- 400
- 建筑面积
- 417.31m2
- 建筑许可号
- 第2021確認建築CIAS00357 号
- 建筑许可取得日期
- 2021年6月9日
- 构造
- 钢筋混凝土造 4层
- 建造年代(预计竣工时期)
- 2022年2月中旬
- 入住时期
- 2022年2月末
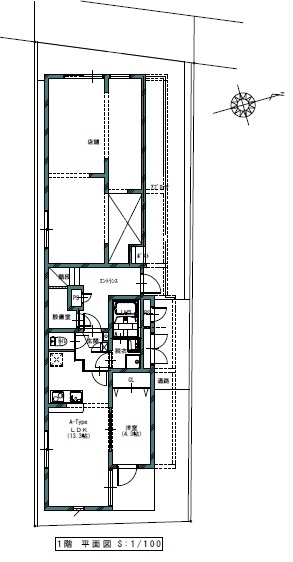
- 户型
- 店铺・1K
- 套内面积
- 总户数
- 店铺1・1K×13户
- 交易方式
- 卖方








