PROPERTY INFORMATION房源信息
■ THE ROOM'S 西大井(13戸)
- 公寓名称
- THE ROOM’S 西大井
- 地址
- 品川区西大井六丁目
- 路线
- JR横须贺线 「西大井」駅 徒歩1分
- 价格
- 已售
■ 备注
JR横须贺线「西大井」站徒歩1分
......................................................
・JR横须贺站「西大井」站出发 乘车时间
「品川」站 5分
「东京」站 12分
「横滨」站 18分
建筑商:株式会社villahousing
■ 詳細情報
- 土地面积
- 113.99m2
- 接道方向
- 南側
- 土地类别
- 住宅用地
- 区域用途
- 準工業地域
- 建蔽率
- 60
- 容积率
- 200
- 建筑面积
- 246.56m2
- 建筑许可号
- 第JTC22Y-AZ0528-00号
- 建筑许可取得日期
- 令和4年10月12日
- 构造
- 钢筋混凝土造 4层(壁式)
- 建造年代(预计竣工时期)
- 2023年7月
- 入住时期
- 2023年7月末
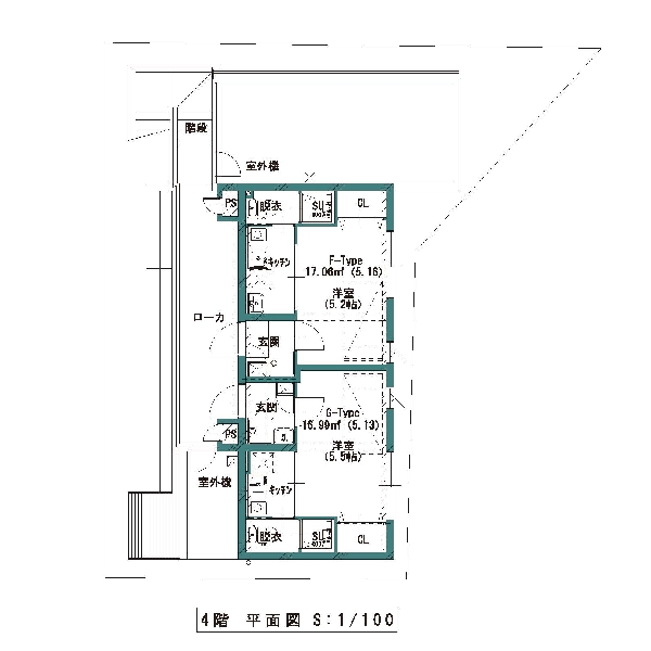
- 户型
- 1K(16.09㎡〜19.62㎡)
- 套内面积
- 227.05
- 总户数
- 1K ×13戸
- 交易方式
- 卖方















