PROPERTY INFORMATION房源信息
■ 整栋 新建公寓计划中 大田区蒲田三丁目
- 公寓名称
- 大田区蒲田3丁目
- 地址
- THE ROOM'S 京急蒲田
- 路线
- 京急本线 「京急蒲田」駅 徒歩4分
- 价格
- 已售
■ 备注
京急本线【京急蒲田】站 徒歩4分
京急本线【梅屋敷】站 徒歩8分
京滨东北线【蒲田】站 徒歩10分
.
■ 詳細情報
- 土地面积
- 81.84m2
- 接道方向
- 东南侧
- 土地类别
- 住宅用地
- 区域用途
- 第一种居住用地・近邻商业地域
- 建蔽率
- 60・80
- 容积率
- 300・400
- 建筑面积
- 建筑许可号
- 建筑许可取得日期
- 构造
- 建造年代(预计竣工时期)
- 入住时期
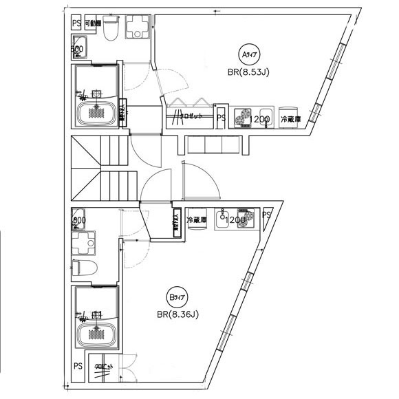
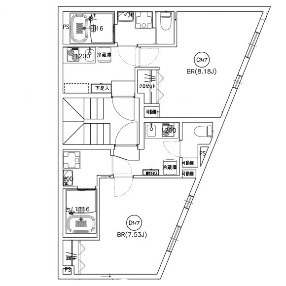
- 户型
- 套内面积
- 总户数
- 交易方式
- 卖方





